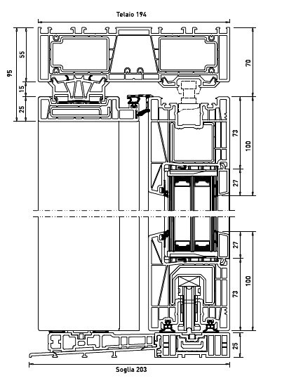
ALZANTE SCORREVOLE ULTRATOP


 

  • Ideale per ogni posa: filo muro interno
  • centro mazzetta, filo muro esterno
  • Porta un vetro fino a mm 52 di spessore
    Doppio vetro con canalina warm edge nera
  • Martellina Vela di Colfert cromo satinata
  • Questo sistema può essere realizzato in ECODESIGN FOX

 

X

Richiesta Informazioni

I campi contrassegnati dal * sono obbligatori. Compila i campi del seguente modulo e sarai ricontattato al più presto.

Letta e compresa l’informativa privacy presente in questo link, ai sensi dell’art. 6 del Regolamento Europeo in materia di Protezione dei Dati n. 679/2016, dichiaro di essere maggiore di 16 anni e presto il consenso all’utilizzo dei miei dati;
Presto il mio consenso all'utilizzo dei miei dati personali forniti in questo modulo a questo sito internet per finalità promozionali, comunicazioni aventi contenuto promozionale, informativo, inviti, sconti dedicati, annunci sulle ultime novità di prodotti e servizi.